2030 Jordan Drive

Single Family Residence For Sale in Parkcrest, Burnaby North

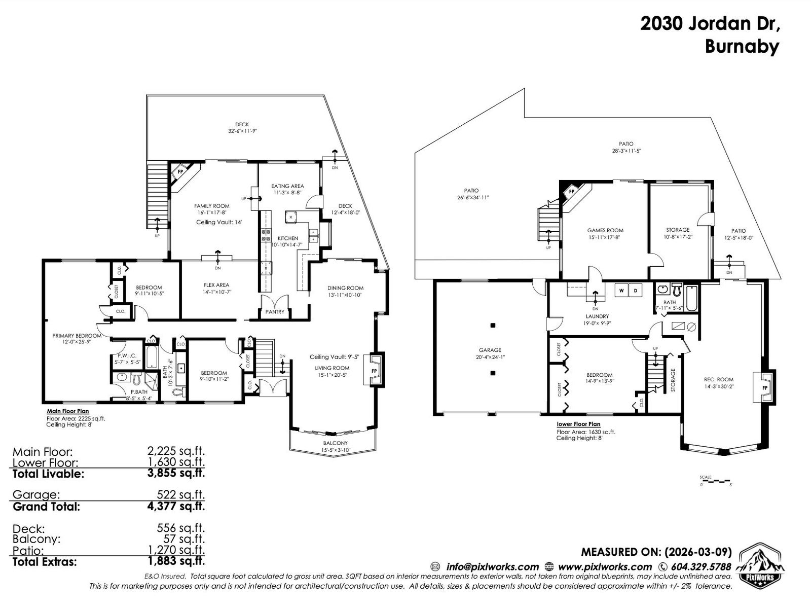
$2,299,000
  • 4 Beds
  • 3 Baths
  • 3,855 Sq. Ft.
  • Built 1972
Enjoy the privacy of a massive 11,906sf lot on a quiet street that backs onto a peaceful creek and Greenbelt. The existing and very livable home has a great layout with 4 (or 5) bedrooms and 3 bathrooms spread over 3800sf. Get creative on redevelopment with a renovation, new home, duplex OR SSMUH. Some photos virtually staged. Open House Saturday 2pm - 4pm.
Address
2030 Jordan Drive
List Price
$2,299,000
Property Type
Residential
Type of Dwelling
Single Family Residence
Structure Type
Residential Detached
Transaction Type
Sale
Area
Burnaby North
Sub-Area
Parkcrest
Bedrooms
4
Bathrooms
3
Floor Area
3,855 Sq. Ft.
Main Floor Area
2225
Lot Size
11906 Sq. Ft.
Lot Size Dimensions
0 x
Lot Size (Acres)
0.27 Ac.
Lot Features
Central Location, Recreation Nearby
Lot Size Units
Square Feet
Total Building Area
3855
Year Built
1972
MLS® Number
R3103041
Listing Brokerage
RE/MAX Select Realty
Basement Area
None
Postal Code
V5B 4E8
Zoning
R1
Ownership
Freehold NonStrata
Parking
Garage Double, Open, Front Access, Concrete
Parking Places (Total)
4
Tax Amount
$7,611.04
Tax Year
2025
Site Influences
Central Location, Recreation Nearby, Shopping Nearby
Community Features
Shopping Nearby
Board Or Association
Greater Vancouver
Heating
Yes
Heat Type
Forced Air
Garage
Yes
Garage Spaces
2
Levels
Two
Number Of Floors In Property
2

Request More Info or a Showing

Gregory Andruff
Personal Real Estate Corporation

RE/MAX Select

Mobile: 778-899-4267

Office: 604-678-3352

Email Directly

4806 Main St Vancouver BC V5V 3R8